張家港愛上網 張家港愛上網

 找回密碼
 立即注冊
搜索

NO.20【悅來花苑】替父母裝修

查看數: 563168 | 評論數: 92 | 收藏 1
關燈 | 提示:支持鍵盤翻頁<-左 右->
    組圖打開中,請稍候......
發布時間: 2016-3-7 14:06

正文摘要:

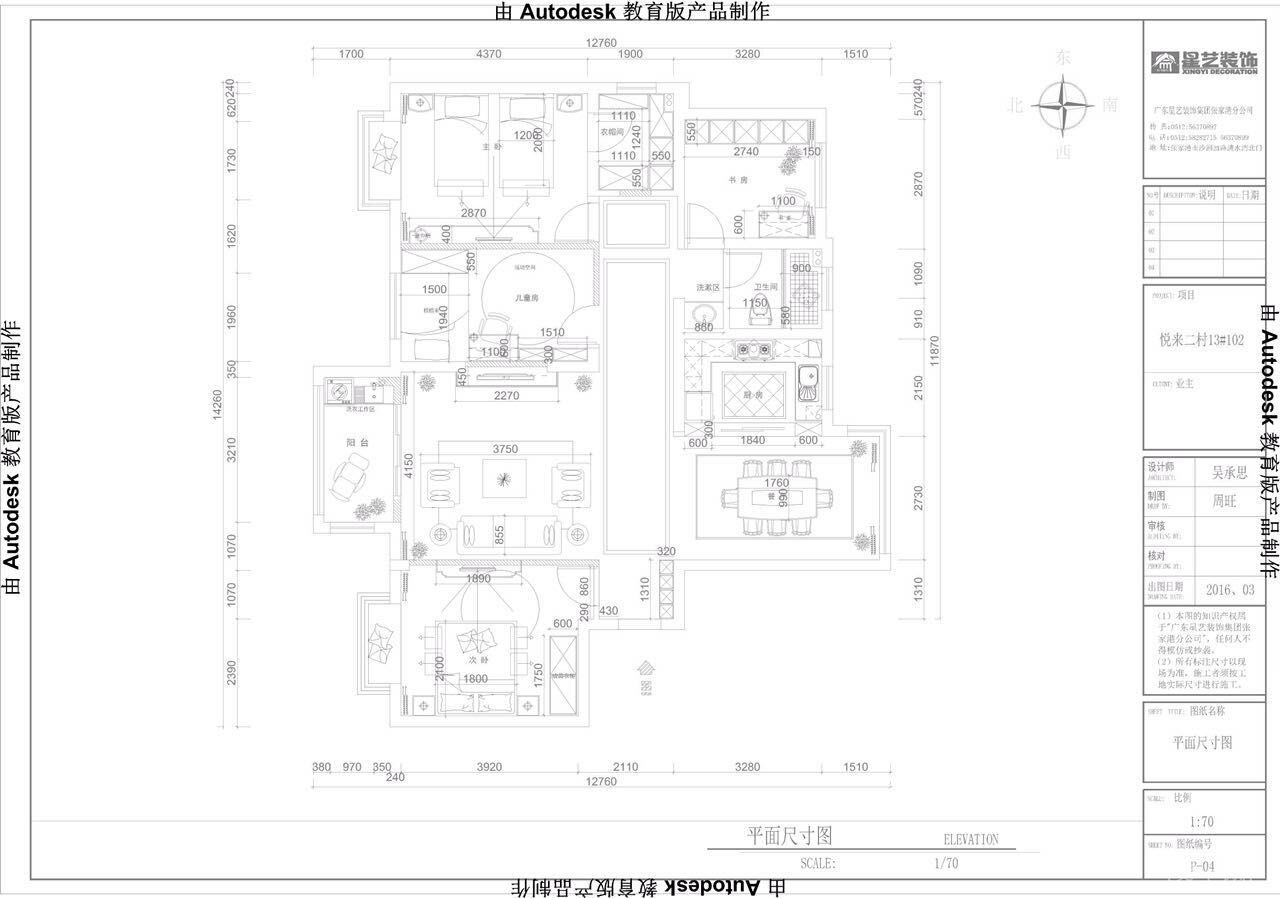
【小 區】: 悅來二村【房型】:四室二廳一廚二衛 【開工日期】:2016/03/06 【完工日期】:待 【套內面積】: 135 平方 【裝修風格】:中式 【設計公司】:廣東星藝 【設計師】:4月25日 趙工接手負責 【 ...

回復

dingding6658來自: 江蘇蘇州 發表于 2016-10-21 20:44:46
真的挺不錯的,喜歡這種風格!
qiai0913來自: 江蘇蘇州 發表于 2016-10-19 20:21:30
lei.qing來自: 江蘇蘇州 發表于 2016-10-19 17:09:31
qiai0913 發表于 2016-10-16 17:31
歷經7個月的工程,終于整的差不多了,父母都比較滿意,關鍵是村上以前的老鄰居們的夸獎在父母那顯得尤為重 ...

樓主總共花了多少銀兩
qiai0913來自: 江蘇蘇州 發表于 2016-10-16 17:31:56
歷經7個月的工程,終于整的差不多了,父母都比較滿意,關鍵是村上以前的老鄰居們的夸獎在父母那顯得尤為重要,作為子女的我也倍感欣慰!2016 加油!

















愛上小麥來自: 江蘇蘇州 發表于 2016-9-19 16:20:00
提示: 作者被禁止或刪除 內容自動屏蔽
寒武紀sh來自: 江蘇 發表于 2016-9-19 16:14:49
看多了美式之類的 中式讓人眼前一亮
qiai0913來自: 江蘇蘇州 發表于 2016-9-16 23:02:08
qiai0913來自: 江蘇蘇州 發表于 2016-9-6 21:02:28
qiai0913來自: 江蘇蘇州 發表于 2016-9-6 13:57:55
美鶴和室榻榻米 發表于 2016-09-06 11:00
恭喜樓主哈 整體效果還不錯哈 ...

謝謝謝謝 終于有人來道賀了
qiai0913來自: 江蘇蘇州 發表于 2016-9-5 19:58:43

QQ|投訴爭議|張家港愛上網 ( 蘇ICP備06012519號-1 互聯網信息服務(ICP)經營許可證(含電子公告): 蘇B2-20130130號 )

GMT+8, 2026-4-21 18:11 , Processed in 0.139329 second(s), 25 queries .

Powered by Discuz! X3.1

© 2001-2012 Comsenz Inc.

返回頂部