張家港愛上網 張家港愛上網

 找回密碼
 立即注冊
搜索

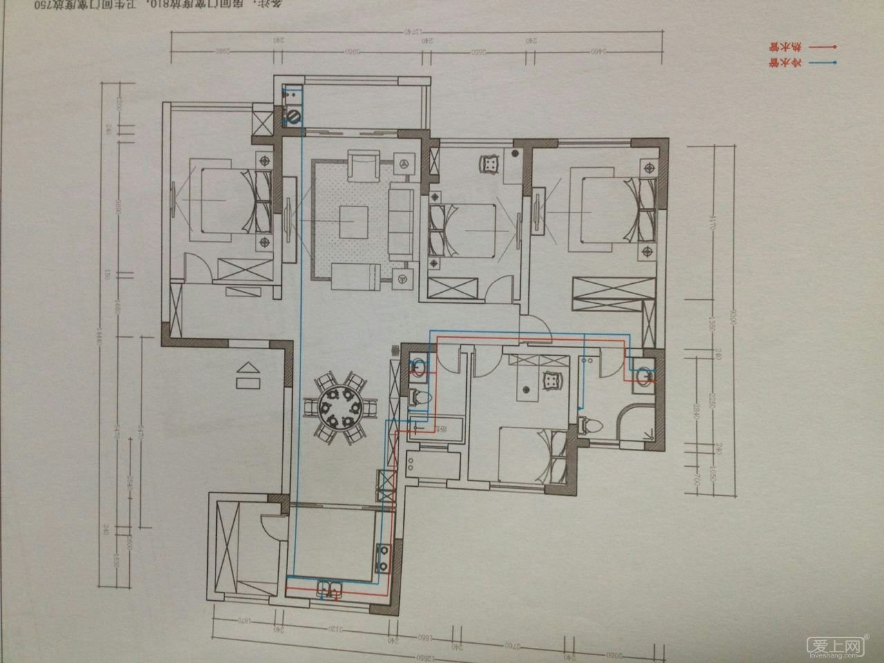
NO.42【尚城國際】142平+簡美 裝修比想象中還復雜 吊頂中

查看數: 93437 | 評論數: 190 | 收藏 1
關燈 | 提示:支持鍵盤翻頁<-左 右->
    組圖打開中,請稍候......
發布時間: 2016-4-18 13:56

正文摘要:

-------------------小家簡介-----------------------   【小 區】:  尚城國際 【房 型】:  四室兩廳 【開工日期】:  2016.3.18 【完工日期】:  預計9月 ...

回復

兔寶寶顧問來自: 江蘇蘇州 發表于 2017-4-26 10:08:55
兔寶寶衣柜只為環保,健康的衣柜。歡迎業主前來咨詢。
左言來自: 中國 發表于 2017-4-19 19:58:41
左言來自: 中國 發表于 2017-4-19 19:54:56
痞子妖來自: 江蘇 發表于 2017-4-17 16:25:54
樓主,美縫需要做我們可以給您搞定
喜歡下雨天來自: 江蘇 發表于 2017-4-16 22:24:22
浪漫之豬 發表于 2017-03-28 16:38
雅立的淋浴房是哪里訂的,一平方價格多少呢?

買雅立,一定要找老板娘!!!
金思維裝飾來自: 中國 發表于 2017-4-7 16:49:43
比利時樂邁地板 發表于 2017-03-29 00:33
恭喜樓主樓主有空來看看比利時樂邁地板 歐洲原裝進口金鋼鉑林地板!地址:月星建材館2樓直達電梯口  電話:15962388267

業主都搬家了阿
比利時樂邁地板來自: 中國 發表于 2017-3-29 00:33:13
恭喜樓主樓主有空來看看比利時樂邁地板 歐洲原裝進口金鋼鉑林地板!地址:月星建材館2樓直達電梯口  電話:15962388267
浪漫之豬來自: 江蘇蘇州 發表于 2017-3-28 16:49:03
葛小樣 發表于 2016-6-10 23:45
今天磚都量了尺寸,估計一個禮拜以后可以開始瓦工。還去北美之家看了沙發好貌美啊, ...

這是哪里的哈
浪漫之豬來自: 江蘇蘇州 發表于 2017-3-28 16:38:21
雅立的淋浴房是哪里訂的,一平方價格多少呢?
喜歡下雨天來自: 江蘇 發表于 2017-3-6 12:44:51

QQ|投訴爭議|張家港愛上網 ( 蘇ICP備06012519號-1 互聯網信息服務(ICP)經營許可證(含電子公告): 蘇B2-20130130號 )

GMT+8, 2026-4-21 18:09 , Processed in 0.142748 second(s), 23 queries .

Powered by Discuz! X3.1

© 2001-2012 Comsenz Inc.

返回頂部