張家港愛上網 張家港愛上網

 找回密碼
 立即注冊
搜索

NO.50【陽光錦程】125平現代風格裝修記錄帖~

查看數: 88010 | 評論數: 162 | 收藏 0
關燈 | 提示:支持鍵盤翻頁<-左 右->
    組圖打開中,請稍候......
發布時間: 2018-6-30 11:01

正文摘要:

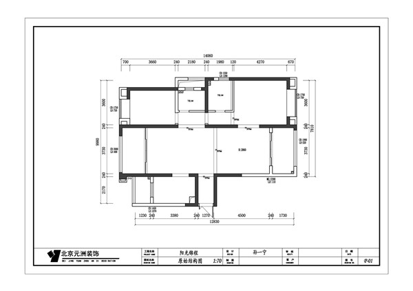
【小區】:陽光錦程【房型】:三室二廳一廚二衛【開工時間】:2018年7月5日 9點18分【面積】:125平【半包】:9.9萬【裝修風格】:現代【裝修公司】:安邸 元洲【設計師】:孫一寧 原始結構: 【開帖篇 ...

回復

偉博裝飾客服來自: 江蘇蘇州 發表于 2020-8-1 23:17:38
樓主,您家房子裝修好了吧,可以更新些落地圖哦
張家港元洲裝飾來自: 中國 發表于 2018-11-10 16:46:47
姐,很久沒更新了,加油喲
戀之風景1來自: 江蘇蘇州 發表于 2018-10-23 21:06:40
戀之風景1來自: 江蘇蘇州 發表于 2018-10-23 20:41:29
小芹菜 發表于 2018-10-23 10:07
好不好不知道 不過強烈建議買大些的 洗衣機8公斤的買完就后悔了

恩,謝謝你的建議
小芹菜來自: 江蘇鎮江 發表于 2018-10-23 10:07:17
好不好不知道 不過強烈建議買大些的 洗衣機8公斤的買完就后悔了
戀之風景1來自: 江蘇蘇州 發表于 2018-10-22 19:15:24
聽銷售員的講解這款很好,但不知道質量如何
戀之風景1來自: 江蘇蘇州 發表于 2018-10-22 19:13:06
戀之風景1來自: 江蘇蘇州 發表于 2018-10-22 19:11:57
戀之風景1來自: 江蘇蘇州 發表于 2018-10-22 19:07:55
墻磚,地磚都鋪貼完成了,這兩天都在量量量中渡過,在木門的樣式,移門的款式,柜子的樣式等設計中糾結著。不過現在基本都已搞定。正式下單了。上點這一陣的進展圖吧

QQ|投訴爭議|張家港愛上網 ( 蘇ICP備06012519號-1 互聯網信息服務(ICP)經營許可證(含電子公告): 蘇B2-20130130號 )

GMT+8, 2026-4-21 18:10 , Processed in 0.130904 second(s), 25 queries .

Powered by Discuz! X3.1

© 2001-2012 Comsenz Inc.

返回頂部